会場一覧に戻る

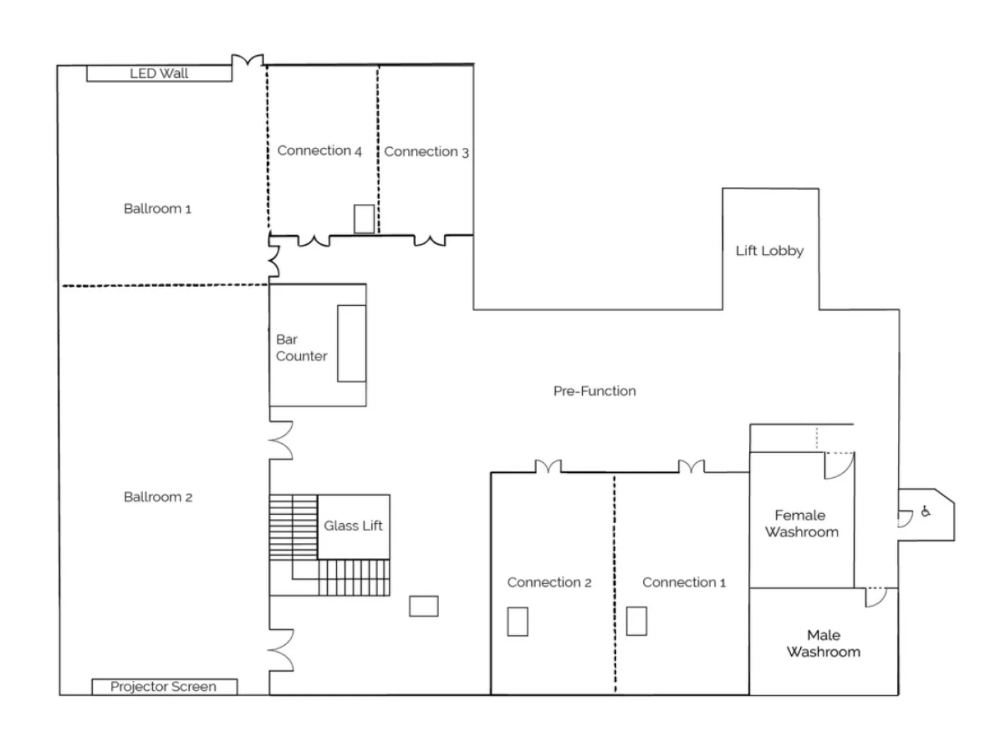
グランドボールルーム

柱のない空間の一面には床から天井までの窓が並び、ニュートラルな色調の空間に自然光がたっぷりと差し込みます。最大500名まで収容可能なグランドボールルームは、全長38メートルの通路を備えており、7.6メートルのLEDビデオウォールと相まって、壮大な宴会場としても、活気あふれる大規模な会議会場としても、自在に空間を演出します。 

666平方メートル 着席500名

表示されている収容人数表は、ステージ設営前のスペースを基準としており、実際の収容人数は異なる場合があります。 

ボールルームの高さ(m)
3.6
面積(m²)
666
講堂の座席配置
500
宴会の席次
400
ビュッフェ形式の席
350
カクテル席
550

その他のおすすめ会場

当ホテルの2つの小規模なボールルームは、優雅さと多目的性を兼ね備え、親しい方々とのお祝いに最適です。洗練された雰囲気のこれらの会場は、格式ある雰囲気を保ちつつ、親密な空間を求める結婚式や披露宴にぴったりです。
当施設ならではの開放的な空間は、ディナー前の交流やドリンクを楽しむのに最適です。雰囲気のある照明と柔軟なレイアウトにより、メインイベントの雰囲気を盛り上げる優雅な空間を演出します。
少人数での挙式に最適な当ホテルの宴会場は、機能性と洗練された雰囲気を絶妙に融合させています。各会場は50名から60名まで収容可能で、イベントにふさわしい快適な空間をご提供いたします。